Patient & Visitor Resources

The MRMC Patient & Visitor Resources guide assists patients, families and visitors with locating short or long-term lodging accommodations as well as other resources for visiting the medical campus.

Campus Map - Revised July 29, 2025 (click for larger view)


CS5-MRMC-Campus-Location-Map_072925-V8_1.png

Milwaukee Area Map

Milwaukee-Area Map

Roads & Construction Notifications

Updated on May 8 - For the Week of  May 11, 2026

AREA CONSTRUCTION NEWS


Zoo Interchange Bluemound Construction (April 1-June)

Eastbound Bluemound Road is reduced to one lane with access to Froedtert's Bluemound Rehabilitation Hospital and Clinics limited or temporarily unavailable.  Alternate route:  Mayfair Road to Wisconsin Avenue and approaching from N. 99th St.

I-41 & I-43, Overnight Full Freeway Closures

  • I-41 NB Sat 5/9 @ Burleigh
  • I-41 NB Fri 5/8 & Mon 5/11 and Tue 5/12 @ Silver Spring
  • I41 SB Fri 5/8 & Sat 5/9 @ Silver Spring
  • I-43 NB Tue 5/12-Fri 5/15 @ Layton

I-94 East-West Corridor (2025-2031: Seven Year Project)

Backups expected; add travel time; take alternate routes.  WATCH FOR WisDOT UPDATED SIGNAGE & CHECK THE QR CODE BELOW.

I-94 West Leg: long-term right lane closures I-94 Eastbound and Westbound 

About 94 East-West ConstructionAbout 94 East-West Construction

​​I-94 East-West Newsletter - Spring 2026
  • Detours:
    • NORTH SIDE OF I-94:
      • Wisconsin Ave & Bluemound Rd
    • SOUTH SIDE OF I-94:
      • Canal St., National Ave., Greenfield Ave & Lincoln Ave
    • REGIONAL ALTERNATE ROUTES:
      • NORTH OF I-94:
        • WIS 100 (Brown Deer Rd/Main St) between I-41 & I-43
      • SOUTH OF I-94:
        • I-894 between I-41 & I43/94
I-94-EAST-WEST-QR-SIGNUP.jpg

Wauwatosa City Projects Information Links:

MRMC CAMPUS TRAFFIC IMPACT NEWS

Ped-Safety.pngCLOSE CALLS OBSERVED - Please stay off phones & cross streets safely:

  • Cross only at crosswalks using the pedestrian signals
  • DO NOT cross against the signal
  • PUSH the pedestrian signal button, WAIT for the walk signal, OBSERVE that traffic has stopped, then CROSS the street
  • Continue to look in both directions as you cross the street

PUBLIC TRANSIT CHANGES (effective January 12, 2026, Waukesha Metro 1 Route)
  

Connell Avenue / SD-04 Alleyway

April 13 through May: Roadway will remain open with delays.  Work to remove & replace curbs and sidewalks.

  • May 8th & 9th : Paving is scheduled for the north end of the alley.  The roadway will remain open for emergency access, but ingress/egress to the Children’s parking garage may be restricted for short periods of time while work is performed near the east entrance/exit gates. 
  • Week of May 11th (completed by Memorial Day weekend): Pavement markings will be scheduled.


87th Street

  •   MCW Student Housing (Watertown Plank Rd & NE Parking Entry Closures)

    • May 18: Official start date for moving parking gates and closure of the north parking lot entrance off Watertown Plank Rd. 
    • This closure will extend for approximately 6 weeks (May 18 through June 26).
    • In late June/early July the north parking lot entrance will reopen allowing parking entrance in the Xx-56 West Lot, the Parking Structure or cutting through the Parking Structure to get to the X-70 Parking Lot.
  • ​  Versiti Blood Center (Watertown Plank & 87th).  Watch for increased construction traffic.​

92nd Street

 
  • 92nd St - Road & Lane Closures

    • 92nd Street will be reduced to one lane in each direction for the remainder of the year while 92nd Street north of Doyne Ave is reconstructed.  Traffic has been moved to the west side of 92nd Street.
    • The sidewalk on the east side of 92nd Street is now closed between Doyne and Connell.  A crosswalk is in place for access to Door 6 from the west side of 92nd Street.
    • Starting May 9th:  Full closure of 92nd St for storm inlet installation and phased closures on Watertown Plank Road for sanitary connections.  Efforts will limit impacts to weekends and ensure roads reopen by Monday morning.
  • 92nd & Door 6 Driveway to Connell (BRT Station Decommissioning)

    • Outside northbound lane to be closed from Door 6 to Connell for removal of BRT station components
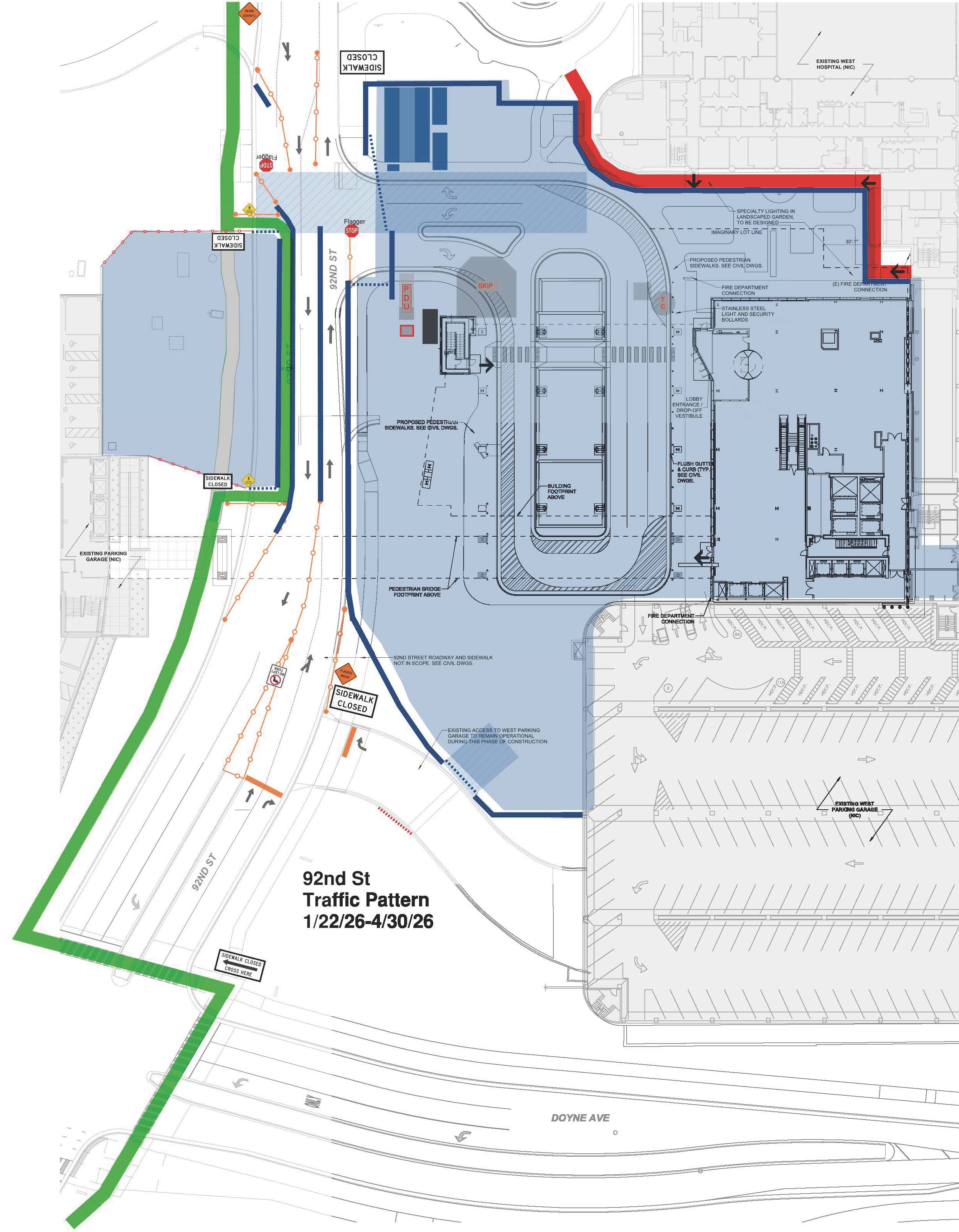
  • Froedtert Hospital Expansion - West Tower (Doyne & 92nd)

    • Lane Shift: The northbound lane remains as is, the southbound lane is shifting to the center lane, and the sidewalk west of 92nd St is shifting to maintain a safe pedestrian path (see graphic below)

    • Froedtert Hospital Main Entrance Circle Drive is closed
      • Non-emergency and non-critical patient transports should continue to use Door 6 off N. 92nd St.
      • Emergency and critical patients should continue to be transported to the Froedtert Hospital ambulance bay
      • Patient drop-off and pick-up has relocated to Level 2 inside Parking Structure 1
    • Construction traffic & flaggers will be present between Connell Ave & Doyne Ave
      • Please proceed with caution and heed directions provided
    • Sidewalk on the east side of 92nd St is closed between Doyne Ave and Froedtert Door 6
      • Please follow signs to cross to the west side of 92nd St at controlled intersections
    • Northbound and southbound traffic remains open, but is limited to one lane in each direction between Connell Ave & Doyne Ave
      • East lanes have been absorbed into the Tower project boundary to support structure and utility buildout
    • Parking Structure 1 access is limited to right turn in and right turn out only off 92nd St
      • 92nd St southbound access to Parking Structure 1 is barricaded/closed indefinitely
      • Exit from Parking Structure 1 onto 92nd St is right turn only
  LANE SHIFT DIAGRAM:  
1-22-26-92nd-St-lane-shift-(1).jpg

 

 MRMC CAMPUS MAP (Rev 4-9-2026)

CS5-MRMC-Campus-Location-Map_WO-4-13-26.jpg
 




 

Wayfinding Tools & Resources

For the best route to campus, consult Google Maps or other traffic-related sites.

Watch our website or our Facebook page for internal campus travel alerts. 

Driving Directions


Hotels & Lodging

Find Your Perfect Stay

Note: Hotels are listed in order of proximity to our campus.
Be sure to verify rates and services which may be different from this publication.

Parking & Transit

Also visit our MRMC Direct page for more information about Drive & Park, Public Transit, and Biking at this link: 
MRMC Direct - Transportation Information | MRMC | Milwaukee Regional Medical Center (mrmccampus.org)
 

Parking


Mass Transit


Other Transportation